Øyvind Guldhaugen

Avdelingsleder / Eiendomsmegler ved EiendomsMegler 1 Harstad

Bilde av Øyvind Guldhaugen

Kort om meg

Som Eiendomsmegler møter jeg mennesker i alle livssituasjoner og jeg føler meg heldig som får bistå med kjøp, salg og omsetning av eiendommene. Jeg har jobbet som Eiendomsmegler siden 2013, i all hovedsak i Nord-Norge, men også i Oslo. I EiendomsMegler 1 har jeg vært ansatt siden 2020, er meget lokalkjent i området og regionen siden jeg er oppvokst på Evenskjer i Tjeldsund kommune og bosatt i Harstad. Jeg har fokus på salg av boliger som for eksempel eneboliger, leiligheter/rekkehus, hytter og tomter samt nybygg. Jeg gjør mitt ytterste for at du som kunde skal være fornøyd med både dialogen, prosessen og kvaliteten på arbeidet som utføres. Jeg vektlegger gode forberedelser for salg, god dialog med selgere/kjøpere og god kvalitet i arbeidet som utføres. Ta kontakt med meg for en fin boligprat og plan for veien din videre.

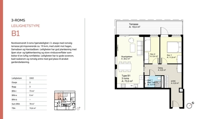
Eiendommer jeg selger

Viser 1 - 3 av 29 boliger

Eiendommer jeg nylig har solgt